箱梁预制时梁靴一并预制吗

20qiao16 发表于 2017-2-9 16:14:22 | 显示全部楼层 | 阅读模式
lx.png
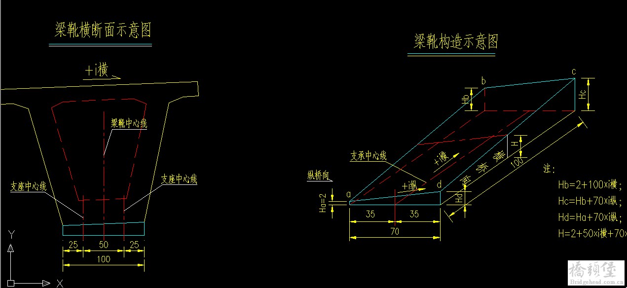
请问一下 箱梁预制的时候 梁靴一并预制吗?
精彩评论倒序浏览

6446查看1评论

旭日东升... 发表于 2017-2-10 08:36:27
    梁靴当然可以一起预制,这个要比单独做要好很多。可以在预制底座想办法。即在预制底座用厚钢板和调节螺栓支撑在型钢支架上。通过调节螺栓来确定梁靴的任意纵横坡度。
举报 回复
您需要登录后才可以回帖 登录 | 注册

本版积分规则

 
 
  • QQ:56984982
  • 点击这里给我发消息
    电话:13527553862
    站务咨询群桥头堡站务咨询桥梁专业交流群:
    中国桥梁专业领袖群
    工作时间
    8:00-18:00