石家坪人行悬索桥(100m上下双主缆)

killxad 发表于 2010-11-10 09:17:52 | 显示全部楼层 | 阅读模式
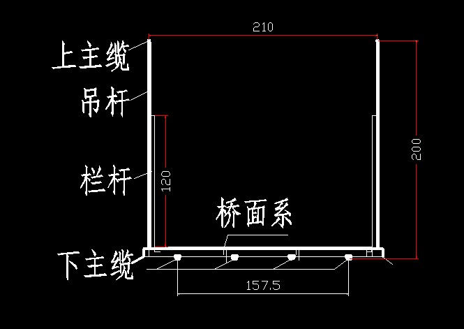
石家坪人行悬索桥 2007.12
跨度100m,上下两根主缆的人行悬索桥,有点特别。
带设计说明。

q2.jpg
q1.jpg

整理:石家坪人行悬索桥2007.12.part2.rar

1.93 MB, 阅读权限: 5, 下载次数: 311

售价: 2 元堡币  [记录]

整理:石家坪人行悬索桥2007.12.part1.rar

2.38 MB, 阅读权限: 5, 下载次数: 168

售价: 3 元堡币  [记录]

精彩评论倒序浏览

2.5万查看21评论

greetingpi... 发表于 2016-9-2 08:55:16
本帖最后由 greetingpine 于 2016-9-2 08:56 编辑

花了5个堡币下了反馈一下:图纸是宜昌的一个小设计单位改的别个单位的图纸,设计质量没仔细研究过不敢评价,单从cad制图质量上来说绘图者的cad基本功都不行,比如网页上传的截图字体大小问题等。一些常用的行业术语都没搞明白,比如矢跨比f/L=240cm等,甚至连改别人的图纸原图都在同一张图上没有删除。不值这个价,感觉就是一个刚毕业的学生拿来做的练习
举报 回复
zjj0602 发表于 2019-4-2 18:10:10
       
再来顶一顶,赚点积分升级。
举报 回复
wtop 发表于 2021-2-6 14:44:47
楼主解压不了,请发qq邮箱327468213
举报 回复
suker 发表于 2010-11-10 18:20:06
这个应该叫索道桥更合适,桥面直接铺在缆索上
举报 回复
ansysysna 发表于 2010-12-23 15:21:10
支持。权限不够无法下载。
举报 回复
ansysysna 发表于 2010-12-24 15:55:59
再来顶一顶,赚点积分升级。
举报 回复
liuhailin8... 发表于 2011-11-10 18:34:20
这个桥的原创是我也
举报 回复
songwen322 发表于 2011-11-11 12:48:47
看过,下载,学习,谢谢。
举报 回复
ajhk 发表于 2012-5-7 07:56:38
值得一看,学习学习
举报 回复
asdxiao198... 发表于 2012-5-7 08:53:36
请问这种桥型如何计算?很是好奇,那位高手指点指点
举报 回复
bd727 发表于 2013-3-11 16:11:53
顶一下,赚取积分,争取升级
举报 回复
BDesigner 发表于 2013-3-11 20:55:44
这种桥型很好,偶尔会用得到,提前学习了解下。
举报 回复
robber_bob 发表于 2013-3-12 10:25:02
为什么无法解压啊?
举报 回复
rwxlrk 发表于 2013-3-23 20:12:19
索道桥,在很多矿山或者电站修建区常用
举报 回复
picklow 发表于 2013-4-22 15:56:09
权限不够啊,谢谢分享
举报 回复
唐超 发表于 2014-9-29 22:50:41
少堡币,下载不了了。唉
举报 回复
volaovic 发表于 2016-8-31 17:47:13
没钱就看看
举报 回复
您需要登录后才可以回帖 登录 | 注册

本版积分规则

 
 
  • QQ:56984982
  • 点击这里给我发消息
    电话:13527553862
    站务咨询群桥头堡站务咨询桥梁专业交流群:
    中国桥梁专业领袖群
    工作时间
    8:00-18:00