1-55钢筋砼板拱桥

hfyb0001 发表于 2009-12-17 14:08:11 | 显示全部楼层 | 阅读模式
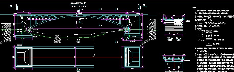
1-55钢筋砼板拱桥.jpg 未命名.jpg   全套的施工图,截图中已对桥梁基本情况描述了

1-55钢筋砼板拱桥.rar

1.05 MB, 阅读权限: 1, 下载次数: 118

售价: 1 元堡币  [记录]

精彩评论倒序浏览

5160查看8评论

心水清明... 发表于 2009-12-19 11:27:15
下载不了,请红旗兄帮忙看看。多谢
举报 回复
心水清明... 发表于 2009-12-19 13:17:57
我正在左一个40m跨双曲拱桥加固,急需点拱桥资料,
急啊,堡币被扣了,但下载不了?
举报 回复
akusil 发表于 2009-12-19 21:12:40
老规范的 呵呵~~~~~~~~~
举报 回复
心水清明... 发表于 2009-12-21 08:20:44
新老规范关系不大,只是荷载大小差异。谢谢楼主!
举报 回复
jinjuanzha... 发表于 2010-4-26 14:19:21
下载学习!这是不是有标准图!{:4_112:}{:4_112:}
举报 回复
budihe 发表于 2013-3-20 22:40:58
图纸怎么样?
有谁下了吗
举报 回复
孙理珍 发表于 2013-3-21 10:19:06
该桥梁位于桂林阳朔县城,跨越田家河,出差时路过,现状良好。由于市政建设,可能过几年该桥会被拆除。
举报 回复
梅苏特厄齐... 发表于 2016-10-19 08:51:42
啊啊啊啊啊啊啊啊啊
举报 回复
您需要登录后才可以回帖 登录 | 注册

本版积分规则

 
 
  • QQ:56984982
  • 点击这里给我发消息
    电话:13527553862
    站务咨询群桥头堡站务咨询桥梁专业交流群:
    中国桥梁专业领袖群
    工作时间
    8:00-18:00